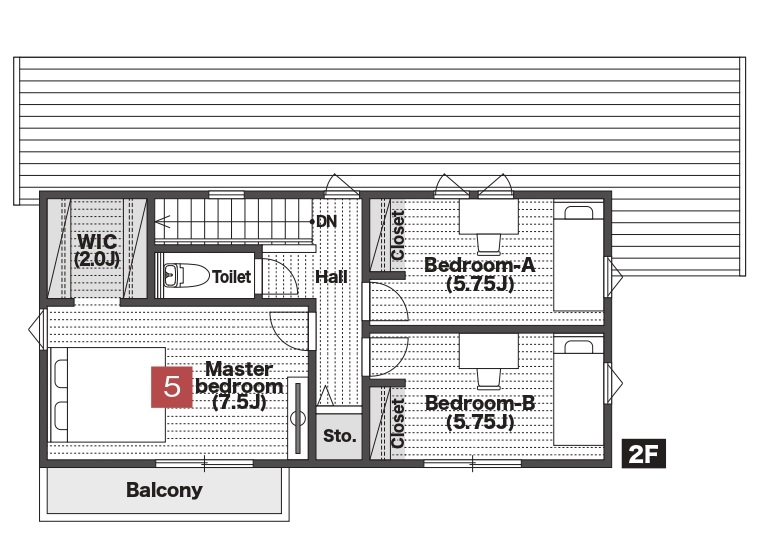
中戸祭町2期4号棟
廊下の少ないランドリールームのある4LDK
モデルハウスの
コンセプト
CONCEPT
シューズクローゼットやパントリーなどの充実した収納に加え、広々としたランドリールーム、家事の時短ができる動線設計など、忙しいママにうれしい間取りとなっています。
スペシャリティ
SPECIALITY
POINT.01
心地よい光が降り注ぐLDK
南に面した大きな窓から自然の光が降り注ぐので明るいLDK。
夜は間接照明の穏やかな明かりでリラックス空間になります。
POINT.02
様々な用途で使える1階洋室
1階にある洋室はLDKに隣接しております。
お子さまの遊び場として、リビングの続きとして、居室として等、様々な用途で使う事ができる便利な空間になっております。
POINT.03
ランドリースペース
ランドリースペースの中には洗濯機を置くスペースも確保。
洗濯した後そのまま干せるので、濡れた洗濯物を別の場所に運ぶ必要がありません。
POINT.04
冷蔵庫を隠せるパントリー
キッチンの奥には買い置きの物を収納できるパントリー。
冷蔵庫も置けるようになっているので、冷蔵庫の中身をリビング側から見られたくない方におすすめの間取りです。






