ブログ BLOG

Blog

2025.03.24

新規建売情報【小山市中久喜12号棟】
収納の広さが喜ばれる、勾配天井の家

小山市中久喜(大谷北小学校区・小山第三中学校区)で新規建売住宅の販売がスタートいたしました。

価格:3,245万円
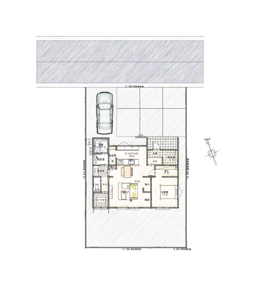
土地:226.86㎡(68.62坪)
建物:117.58㎡(35.50坪)
間取り:3LDK+土間収納+小屋裏スペース

【立地】
*イオンモール小山まで約940m
*せいほう幼稚園まで約1300m
*小山犬塚郵便局まで約2600m

【駐車】
土間コン3台駐車可能

1Fに主寝室があるので、将来的に平屋のようにも暮らせる半平屋の間取りです。

こちらの物件は2025年7月頃中旬頃完成予定です。
標準装備等は類似物件にてご案内させていただきますのでお気軽にお問合せください。

小山市中久喜12号棟