ブログ BLOG

Blog

2020.08.12

【くらフェスブログ】間々田駅東2期18号棟④

こんにちは!間々田駅東2期18号棟チームです。
今年の3/2に各班のコンセプトを発表し合う中間発表がありました。
各班の特色やまとめ方、どれも目を張るものがあります。。。
さて我々も前回ご紹介させて頂きました「Grassy」で発表を迎えます。
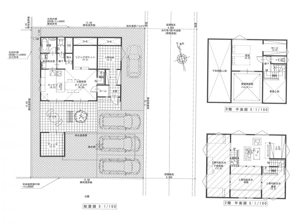
写真は「Grassy」のコンセプトで作成したプランと中間発表を行っている様子です。
中庭風のスペースを設けグランピングやちょっとしたカフェスペースにしたりと用途は様々です。
さてここからどのように変わっていくのか。。。

次回もお楽しみに!