建売分譲情報 NEWLY RESIDENTIAL
PROPERTY INFORMATION

MGrad宇都宮市 中戸祭町2期4号地

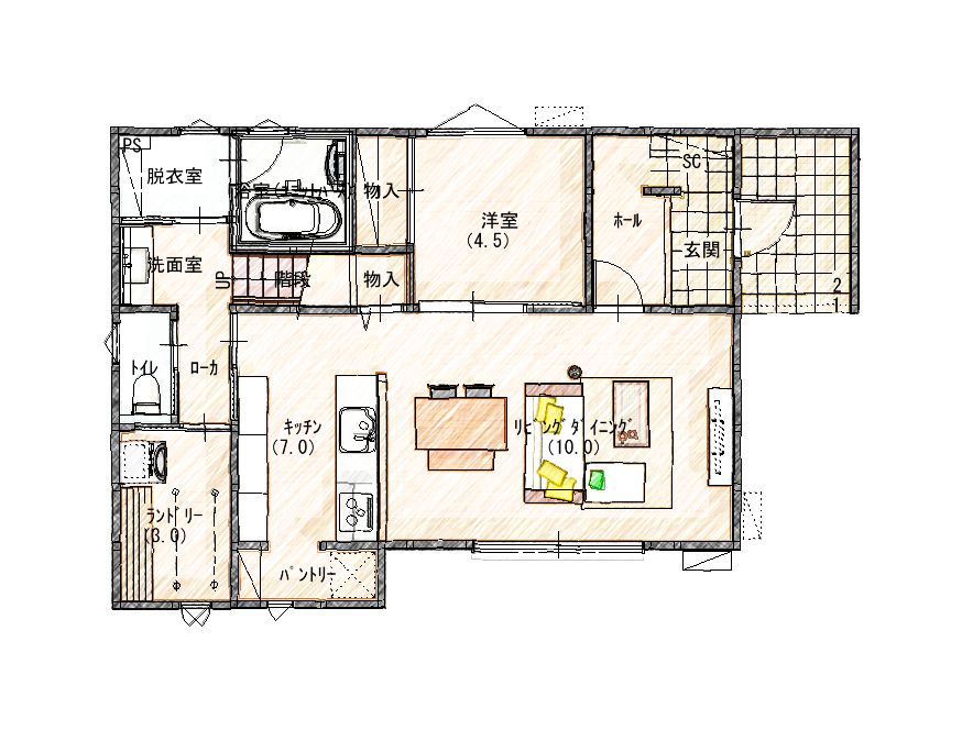
廊下の少ないランドリースペースのある4LDK

4LDK+ランドリースペース

所在地
宇都宮市中戸祭町3025番2 外4筆
交 通
バス停「第2グリーンヒル南」 約580m
土地面積
204.17㎡(61.76坪)
建物面積
108.06㎡(32.62坪)
価 格
4,438万円

むぎくらの建売分譲の特長

  • POINT.オプションだと
    思っていたものも
    むぎくらでは標準設備
  • POINT. 45年間の実績をいかし
    細部まで考えられた
    間取り&デザイン
  • POINT. 家族で暮らす大切な家を
    支え
    続けてくれる
    安心な手厚い保証

家のコンセプト
HOUSE CONCEPT

廊下の少ないランドリールームのある4LDK

シューズクローゼットやパントリーなどの充実した収納に加え、広々としたランドリールーム、家事の時短ができる動線設計など、忙しいママにうれしい間取りとなっています。

ピックアップフォト
PHOTO GALLERY

間取りプラン
PLANNING

メールで1分、簡単お手続き。
下記ボタンから詳しい資料のお取り寄せや
希望の日時でのご見学予約が可能です。

現場ブログ
BLOG

  • 動画

    【ルームツアー】廊下の少ないランドリールームのある4LDK

    2025.06.24
    MORE
  • NEWS

    2025年決算キャンペーンのお知らせ

    2025.05.27
    MORE
  • Blog

    【中戸祭2期4号棟】完成しました!

    2025.04.14
    MORE
分譲地情報を見る

アクセス
ACCESS

所在地
宇都宮市中戸祭町3025-2

カーナビ住所宇都宮市中戸祭町2145-22

周辺情報
LIFE INFORMATION

物件概要
OUTLINE

所在地 宇都宮市中戸祭町3025番2 外4筆
価格(税込) 4,438万円
交通 バス停「第2グリーンヒル南」 約580m
小学校区 戸祭小学校区 中学校区 星が丘中学校区
小学校区 戸祭小学校区
中学校区 星が丘中学校区
建物面積 108.06㎡(32.62坪) 土地面積 204.17㎡(61.76坪)
建物面積 108.06㎡(32.62坪)
土地面積 204.17㎡(61.76坪)
間取り 4LDK+ランドリースペース 駐車場 有 3台駐車可
間取り 4LDK+ランドリースペース
駐車場 有 3台駐車可
仕様 構造/階数 木造2階建
仕様
構造/階数 木造2階建
工法 木造軸組工法(在来) 建築確認番号 東日本24-13959号
工法 木造軸組工法(在来)
建築確認番号 東日本24-13959号
建ぺい率 50 容積率 80
建ぺい率 50
容積率 80
都市計画地域 市街化区域 用途地域 第一種低層住居専用地域
都市計画地域 市街化区域
用途地域 第一種低層住居専用地域
地目 宅地 道路種別 公道
法42条1項1号道路
地目 宅地
道路種別 公道
法42条1項1号道路
築年月 2025年4月中旬 入居予定 2025年4月完成予定。2025年8月末まで展示期間有り。
築年月 2025
入居予定 2025年4月完成予定。2025年8月末まで展示期間有り。
総区画数 1区画
開発許可番号 -
設備 公営水道・公共下水・東京電力
制限事項
分譲地境界工事 155,000円
取引態様 売主(株式会社むぎくら)
その他 -

メールで1分、簡単お手続き。
下記ボタンから詳しい資料のお取り寄せや
希望の日時でのご見学予約が可能です。

お電話でのお問い合わせはこちら
ささいな事でも
お気軽にお問い合わせください。
0120-37-1806
営業時間/9:00〜18:00 無休
(年末年始・GW・夏期休暇を除く)
建売分譲情報の一覧にもどる