ブログ BLOG

Blog

2021.11.01

ちょっとした空間を最大限に有効利用!【戸祭町2期4号棟】

みなさんこんにちは。

 

「畳1帖分のスペース」と聞いて皆さんはどんなことをイメージされますか?

 

広い、という印象を持たれる方は少ないと思われるこの「畳1帖分」というスペース。

でもこの限られたスペースも計画次第でとっても魅力的なスペースとして利用することができるようになるんです。

「カウンターを設けた場所なんだな」という事はお分かりになるかと思います。

 

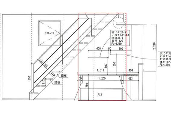
続いて同じく図面で横から見てみましょう。

図面って見慣れないとなかなかわかりづらいかと思いますが、何となくいろいろなものがつくのかな?というイメージは伝わるかと思います。

 

では下から一つづつご説明していきます。

まず一番下のFIXと書かれている部分、これは明り取りの窓です。(FIX窓というのは開け閉めのできない窓です。)とても低い位置に取り付けている為、お子さんがいたずらで開けたりできない窓の形状にしながら光は取り込めるよう計画しています。

 

そしてその少し上にあるのがカウンター。

これは上から見た図面でも確認ができますが、カウンターの取り付け高さは床から75cmになっており、一般的なダイニングテーブル位の高さとなっています。

幅は1.2m程確保しているので一人で利用するには十分なスペースがあります。

 

そしてこの図面では確認はできませんがカウンターの上部には2口コンセントを設置。

カウンターの前に腰かけてスマホを見たりパソコンをするのにコンセントは必需品です。

 

続いてその上、永大産業のリビングステージ ディスプレイシェルフを2段。

金物を見せないシンプルなデザインでお気に入りの写真や小物などをオシャレに収納できます。

 

そしてそのさらに上には部屋全体をオシャレに演出する間接照明やデザイン階段が配置されています。

この1帖のスペースを写真で見るとこのようになります。

いかがですか?

畳1帖と言えども工夫を凝らすことでこれほどいろいろな物を取り入れることができるようになります。

 

ちなみにここはキッチンの前にあるスペースの為、ママが料理をしながら子供やご主人とのコミュウニケーションにも最適的です。

 

この工夫を凝らしたスペースの有効活用をご覧になりたい方はMUGIKURAまでお気軽にお問い合わせください。

 

見学のご予約はこちらから≫