建売分譲情報
NEWLY RESIDENTIAL
PROPERTY INFORMATION
小山市出井2期7号地
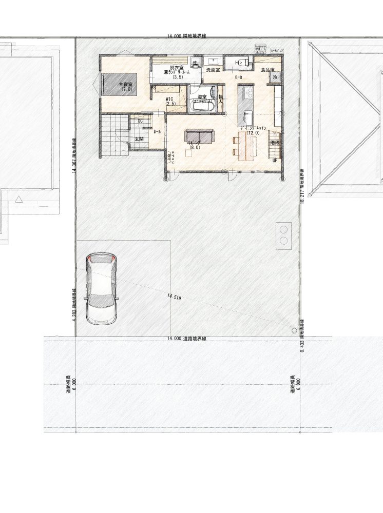
美しさと機能性を追求した1階完結型住宅
3LDK+吹抜け+小屋裏スペース
- 所在地
- 小山市大字出井字西本郷1761-10、1760-12、1761-35、1760-13、1761-34
- 交 通
- JR小金井駅 約4,200m / オーバス 桑中学校北 約900m
- 土地面積
- 261.09㎡(78.97坪)
- 建物面積
- 115.30㎡(34.81坪)
- 価 格
- 3,380万円
むぎくらの建売分譲の特長
-
POINT.オプションだと
思っていたものも
むぎくらでは標準設備 -
POINT. 45年間の実績をいかし
細部まで考えられた
間取り&デザイン -
POINT. 家族で暮らす大切な家を
支え
続けてくれる
安心な手厚い保証
家のコンセプト
HOUSE CONCEPT
美しさと機能性を追求した1階完結型住宅
1階に暮らしのすべてを凝縮。
広々20帖のLDKは、8帖の吹抜けが開放感を演出し、光と風が心地よく巡ります。
主寝室と水回りを近接させた動線設計で、毎日の暮らしがスムーズに。
美しさと機能性を極めた、これからの「1階完結型」住宅です。
内観イメージです。
内観イメージです。
アクセス
ACCESS
所在地
: 小山市大字出井字西本郷1761-10、1760-12、1761-35、1760-13、1761-34
カーナビ住所栃木県小山市荒井86の南側
周辺情報
LIFE INFORMATION
- はねかわ太陽認定こども園 約2,000m
- こばと保育園 約2,000m
- 小山市羽川小学校 約1,500m
- 小山市立桑中学校 約1,100m
- とりせん 羽川店 約1,900m
- 朝日病院 約2,000m
- ローソン 小山喜沢東店 約700m
物件概要
OUTLINE
| 所在地 | 小山市大字出井字西本郷1761-10、1760-12、1761-35、1760-13、1761-34 | ||
|---|---|---|---|
| 価格(税込) | 3,380万円 | ||
| 交通 |
JR小金井駅 約4,200m オーバス 桑中学校北 約900m |
||
| 小学校区 | 羽川小学校区 | 中学校区 | 桑中学校区 |
| 小学校区 | 羽川小学校区 | ||
| 中学校区 | 桑中学校区 | ||
| 建物面積 | 115.30㎡(34.81坪) | 土地面積 | 261.09㎡(78.97坪) |
| 建物面積 | 115.30㎡(34.81坪) | ||
| 土地面積 | 261.09㎡(78.97坪) | ||
| 間取り | 3LDK+吹抜け+小屋裏スペース | 駐車場 | 有 2台可能 |
| 間取り | 3LDK+吹抜け+小屋裏スペース | ||
| 駐車場 | 有 2台可能 | ||
| 仕様 | 構造/階数 | 木造2階建 | |
| 仕様 | |||
| 構造/階数 | 木造2階建 | ||
| 工法 | 木造軸組工法(在来) | 建築確認番号 | 東日本-25-12121 |
| 工法 | 木造軸組工法(在来) | ||
| 建築確認番号 | 東日本-25-12121 | ||
| 建ぺい率 | 60% | 容積率 | 200% |
| 建ぺい率 | 60% | ||
| 容積率 | 200% | ||
| 都市計画地域 | 市街化調整区域 | 用途地域 | |
| 都市計画地域 | 市街化調整区域 | ||
| 用途地域 | |||
| 地目 | 宅地 | 道路種別 | 法42条1項2号道路 |
| 地目 | 宅地 | ||
| 道路種別 | 法42条1項2号道路 | ||
| 築年月 | 2026年2月初旬 | 入居予定 | 2026年2月に完成予定。完成後即入居可能。 |
| 築年月 | 2026 | ||
| 入居予定 | 2026年2月に完成予定。完成後即入居可能。 | ||
| 総区画数 | 1区画 | ||
| 開発許可番号 | - | ||
| 設備 | 公営水道・東京電力(個別浄化槽(側溝は雨水のみに使用され、浄化槽水路は別途道路内に布設されます。)) | ||
| 制限事項 | 法22条区域 | ||
| 分譲地境界工事 | 0円 | ||
| 取引態様 | 売主(株式会社むぎくら) | ||
| その他 | ・個別合併浄化槽処理水の放流先は小山用水土地改良区の水路となります。(年間使用料として7人槽まで年間6,000円要します) ・所有権移転後、小山土地改良区に誓約書2部を提出(名義変更手数料3,000円) ・地盤調査費、地盤改良等の補強工事が発生した場合は買主負担となります。 ・境界ブロック、フェンスは隣地との共有の為、維持管理も共同となります。 | ||
