建売分譲情報
NEWLY RESIDENTIAL
PROPERTY INFORMATION
自治医大3期10号地
光と風が巡る、木の大空間
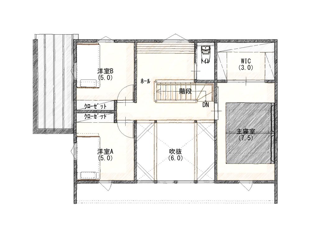
3LDK+FC+吹抜け
- 所在地
- 下野市薬師寺字谷向3178番2
- 交 通
- JR「自治医大」駅 約1230m
- 土地面積
- 205.38㎡(62.12坪)
- 建物面積
- 110.95㎡(33.50坪)
- 価 格
- 5,298万円
むぎくらの建売分譲の特長
-
POINT.オプションだと
思っていたものも
むぎくらでは標準設備 -
POINT. 45年間の実績をいかし
細部まで考えられた
間取り&デザイン -
POINT. 家族で暮らす大切な家を
支え
続けてくれる
安心な手厚い保証
家のコンセプト
HOUSE CONCEPT
光と風が巡る、木の大空間
パッシブ設計×高性能で、自然の力を賢く取り込む住まい。
21帖の無垢床LDKの中心には、6帖分の吹抜けを設け、縦にも横にも広がる圧倒的な開放感を実現しました。
光が降り注ぎ、風が抜ける心地よさは、エアコンに頼りきらない快適性を叶えます。
GX志向型住宅ならではの省エネ性能と、33.5坪のリアルなサイズ感を、ぜひ体感ください。
現場ブログ
BLOG
周辺情報
LIFE INFORMATION
- 薬師寺幼稚園 約940m
- わかくさ保育園 約540m
- 市立衹園小学校 約570m
- 南河内第二中学校 約1050m
- かましん自治医大店 約920m
- しもつけクリニック 約280m
- 足利銀行 南河内支店 1060m
- 栃木銀行 自治医大駅前出張所 約910m
- 自治医大駅前郵便局 1000m
- JR「自治医大」駅 約1230m
- 自治医大病院 約550m
物件概要
OUTLINE
| 所在地 | 下野市薬師寺字谷向3178番2 | ||
|---|---|---|---|
| 価格(税込) | 5,298万円 | ||
| 交通 | JR「自治医大」駅 約1230m | ||
| 小学校区 | 祇園小学校区 | 中学校区 | 南河内第二中学校区 |
| 小学校区 | 祇園小学校区 | ||
| 中学校区 | 南河内第二中学校区 | ||
| 建物面積 | 110.95㎡(33.50坪) | 土地面積 | 205.38㎡(62.12坪) |
| 建物面積 | 110.95㎡(33.50坪) | ||
| 土地面積 | 205.38㎡(62.12坪) | ||
| 間取り | 3LDK+FC+吹抜け | 駐車場 | 有 2台可能 |
| 間取り | 3LDK+FC+吹抜け | ||
| 駐車場 | 有 2台可能 | ||
| 仕様 | 構造/階数 | 木造2階建 | |
| 仕様 | |||
| 構造/階数 | 木造2階建 | ||
| 工法 | 木造軸組工法(在来) | 建築確認番号 | 東日本-25-14239 |
| 工法 | 木造軸組工法(在来) | ||
| 建築確認番号 | 東日本-25-14239 | ||
| 建ぺい率 | 60% | 容積率 | 200% |
| 建ぺい率 | 60% | ||
| 容積率 | 200% | ||
| 都市計画地域 | 市街化調整区域 | 用途地域 | |
| 都市計画地域 | 市街化調整区域 | ||
| 用途地域 | |||
| 地目 | 宅地 | 道路種別 | 法42条1項4号道路 |
| 地目 | 宅地 | ||
| 道路種別 | 法42条1項4号道路 | ||
| 築年月 | 2026年3月下旬 | 入居予定 | 2026年3月下旬完成予定。2026年12月まで展示期間あり。 |
| 築年月 | 2026 | ||
| 入居予定 | 2026年3月下旬完成予定。2026年12月まで展示期間あり。 | ||
| 総区画数 | 1区画 | ||
| 開発許可番号 | - | ||
| 設備 | 公営水道・公共下水・東京電力 | ||
| 制限事項 | 法22条区域 | ||
| 分譲地境界工事 | 230,000円 | ||
| 取引態様 | 売主(株式会社むぎくら) | ||
| その他 | ・鉄塔隣接、高圧線線下地があります。 ・北側県道は、拡幅計画があります。・分譲地入口は、県道拡幅部分を介して接道します。 ・都計法第34条第11号に基づく下野市による指定区域内になります。 | ||
