建売分譲情報 NEWLY RESIDENTIAL
PROPERTY INFORMATION

MGrad小山市中久喜12号地

収納の広さが喜ばれる、勾配天井の家

3LDK+土間収納+小屋裏スペース

所在地
小山市大字中久喜字陳場1158番1、1159番6
交 通
国道4号線 約700m / バス停「イオンモール小山前」 約940m / JR小田林駅 約3700m
土地面積
226.86㎡(68.62坪)
建物面積
117.58㎡(35.50坪)
価 格
3,245万円

むぎくらの建売分譲の特長

  • POINT.オプションだと
    思っていたものも
    むぎくらでは標準設備
  • POINT. 45年間の実績をいかし
    細部まで考えられた
    間取り&デザイン
  • POINT. 家族で暮らす大切な家を
    支え
    続けてくれる
    安心な手厚い保証

家のコンセプト
HOUSE CONCEPT

収納の広さが喜ばれる、勾配天井の家

黒と木目が調和する空間に、吹抜けと勾配天井が開放感を演出。
階段下にはスタディスペースを設け、暮らしに+αの工夫を。
1階主寝室の半平屋設計で、将来も安心。
土間収納や小屋裏スペースなど、豊富な収納も魅力です。

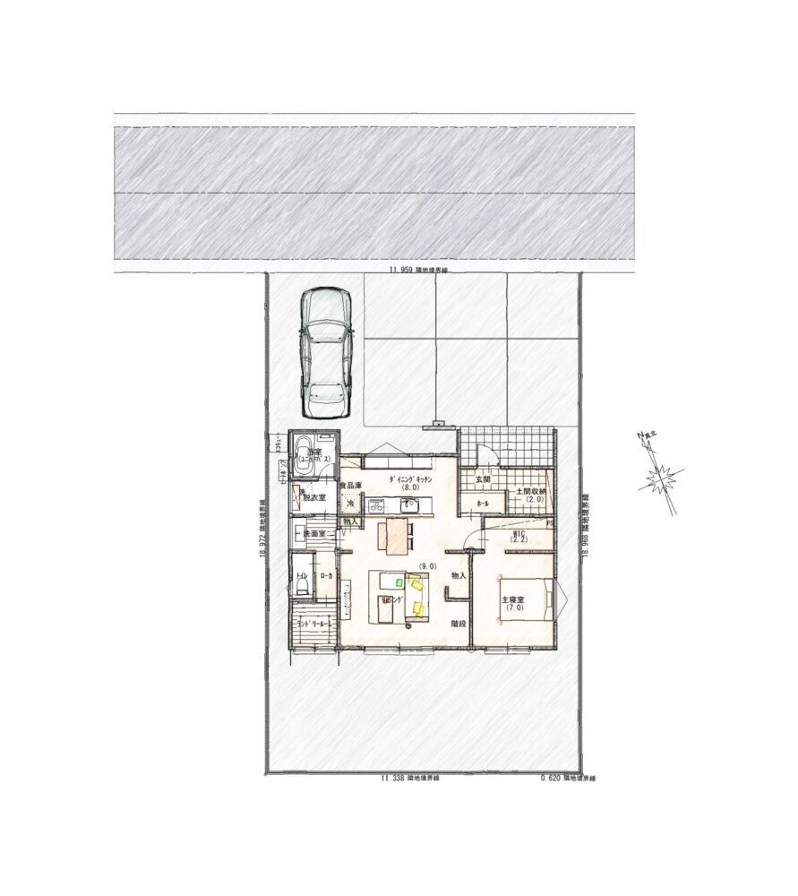
間取りプラン
PLANNING

メールで1分、簡単お手続き。
下記ボタンから詳しい資料のお取り寄せや
希望の日時でのご見学予約が可能です。

現場ブログ
BLOG

  • NEWS

    2025年決算キャンペーンのお知らせ

    2025.05.27
    MORE
  • Blog

    新規建売情報【小山市中久喜12号棟】
    収納の広さが喜ばれる、勾配天井の家

    2025.03.24
    MORE

アクセス
ACCESS

所在地
小山市大字中久喜字陳場1158番1、1159番6

カーナビ住所小山市中久喜1161の東側

周辺情報
LIFE INFORMATION

物件概要
OUTLINE

所在地 小山市大字中久喜字陳場1158番1、1159番6
価格(税込) 3,245万円
交通 国道4号線 約700m
バス停「イオンモール小山前」 約940m
JR小田林駅 約3700m
小学校区 大谷北小学校区 中学校区 小山第三中学校区
小学校区 大谷北小学校区
中学校区 小山第三中学校区
建物面積 117.58㎡(35.50坪) 土地面積 226.86㎡(68.62坪)
建物面積 117.58㎡(35.50坪)
土地面積 226.86㎡(68.62坪)
間取り 3LDK+土間収納+小屋裏スペース 駐車場 有 3台駐車可
間取り 3LDK+土間収納+小屋裏スペース
駐車場 有 3台駐車可
仕様 構造/階数 木造2階建
仕様
構造/階数 木造2階建
工法 木造軸組工法(在来) 建築確認番号 東日本25-02401
工法 木造軸組工法(在来)
建築確認番号 東日本25-02401
建ぺい率 60% 容積率 200%
建ぺい率 60%
容積率 200%
都市計画地域 市街化調整区域 用途地域 指定なし
都市計画地域 市街化調整区域
用途地域 指定なし
地目 宅地 道路種別 法42条1項1号道路
地目 宅地
道路種別 法42条1項1号道路
築年月 2025年7月中旬 入居予定 2025年7月中旬完成予定。完成後即入居可能。
築年月 2025
入居予定 2025年7月中旬完成予定。完成後即入居可能。
総区画数 1区画
開発許可番号 -
設備 公営水道・東京電力
制限事項 法22条区域
分譲地境界工事 145,000円
取引態様 売主(株式会社むぎくら)
その他 個別浄化槽(側溝は雨水のみに使用され、浄化槽水路は別途道路内に布設されます。) ※浄化槽維持管理費については、別途費用がかかります。

メールで1分、簡単お手続き。
下記ボタンから詳しい資料のお取り寄せや
希望の日時でのご見学予約が可能です。

お電話でのお問い合わせはこちら
ささいな事でも
お気軽にお問い合わせください。
0120-37-1806
営業時間/9:00〜18:00 無休
(年末年始・GW・夏期休暇を除く)
建売分譲情報の一覧にもどる