自治医大3期1号棟
猫と暮らす半平屋の家
モデルハウスの
コンセプト
CONCEPT
猫ものびのび、人もゆったり。
主寝室が1階にある半平屋の住まいは、将来を見据えた安心の設計。
吹抜けのあるリビングにはキャットウォークを設け、猫が好きな高さで自由に寛げる空間に。
人も猫も、どちらにとっても心地よい毎日がここから始まります。
スペシャリティ
SPECIALITY
POINT.01
猫も人も“のびのび”暮らせる設計
吹き抜けのリビングに設けられたキャットウォークが印象的な「猫と暮らす半平屋の家」。
猫が自由に動き回れる工夫と、家族がゆったり過ごせる空間設計を両立しています。
ペットと人、それぞれの心地よさを大切にした住まいです。
POINT.02
将来を見据えた“半平屋”構成
主寝室を1階に配置した半平屋スタイルで、将来も安心して暮らせる設計です。
生活の中心を1階にまとめることで、階段の上り下りを最小限に抑えつつ、開放感と暮らしやすさを両立。
ライフステージの変化にも柔軟に対応します。
POINT.03
収納と動線にゆとりを持たせた間取り
3LDKに加え、パントリーやウォークインクローゼットを備えたゆとりの間取り。
生活動線が整理され、家事効率もアップします。
ペット用品や季節物などもすっきり収納でき、家族全員が快適に過ごせる工夫が詰まっています。
POINT.04
アクセス&周辺環境にも優れた立地
自治医大駅から徒歩圏内の好立地にあり、学校やスーパー、クリニックも近く生活環境が充実。
静かな住宅地でありながら、日常の利便性も高く、子育て世帯にもシニア世帯にも暮らしやすいバランスの取れた住環境です。
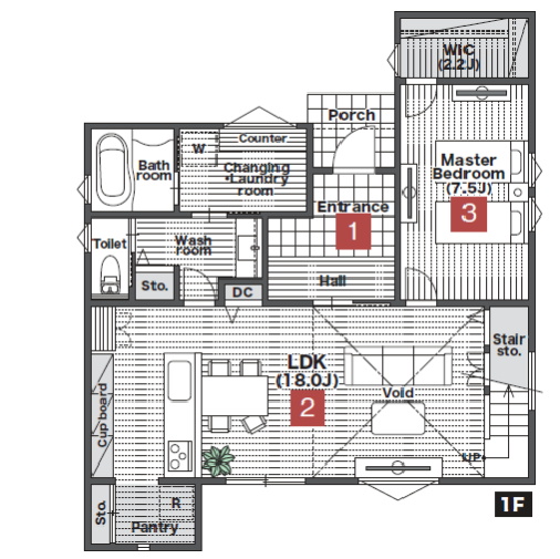
間取りプラン
PLANNING


-
1玄関玄関からリビングへ続く建具には、ガラス戸のクアドロスリムを採用しました。
朝のお見送り、夜のお出迎えの様子を見る事ができるので安心感や可愛い姿を見る事が出来ます。 -
2LDK人も猫も心地よく住める工夫をたっぷり詰め込んだLDKです。
-
3主寝室1階に設置した主寝室。
平屋のような生活動線で日々を過ごせる人気の間取りです。 -
4吹抜け吹抜けを活用してキャットウォークを設置しました。
家の中で安全で上下運動ができる環境を整えてあげれば、猫も人との暮らしが楽しくなります。 -
52階トイレ2階トイレには人間用のトイレの隣に広い猫用トイレスペースを設けました。可動棚も設置しているので、トイレ用品の収納にも便利です。




