「Piatta」とは
ABOUT

良いとこ取りで、わたしらしく
ワンフロアで生活が完結する「平屋」と
子ども部屋や来客用の部屋など+αを
生み出す「2階建て」の良いところだけを
組み合わせた「半平屋」という新しい暮らし。
2階建てなのに、平屋のような
コンパクトな動線を実現した家。
「Piatta」の由来
「半平屋」そして
「わたしらしさを+」
「Piatta(ピアッタ)」は、イタリア語の
「平らな(Piatto)」の「t」をプラスに見立て
語尾を「a」に変えて「+α」の意味を込めた造語です。
平屋に+αを施した「半平屋」、そして
「わたしらしさを+」という想いを込めています。

「Piatta」の特徴
SPECIALITIES
-
平屋と2階建ての良いとこどり!
「半平屋」の間取り

-
吹抜けがつくる、心地いい
ゆとりと遊び心がある空間

-
自慢したくなる、
オシャレな外観デザイン

プランニングとデザイン
PLANNING & DESIGN
間取りプラン
わたしらしい暮らしを選ぼう
- ビッグ吹き抜け
プラン - 憧れ詰め込み
プラン - 大空間LDK
プラン - ラクラク生活
プラン
-
- 3LDK
+ユーティリティ
+畳コーナー
+パントリー+SC - 延床面積 112.61m²(34.00 坪)
1階面積 66.24m²(20.00 坪)/
2階面積 46.37m²(14.00 坪)
品番:Piatta No.6建物価格
2,019万円〜(税抜)
- 3LDK
+ユーティリティ
-
- 3LDK
+SIC+ウッドデッキ
+吹き抜け
+WIC
+屋根裏収納+バルコニー - 延床面積 116.23m²(35.16 坪)
1階面積 77.25m²(23.37 坪)/
2階面積 38.97m²(11.79 坪)
品番:Piatta No.8建物価格
2,229万円〜(税抜)
- 3LDK
+SIC+ウッドデッキ
-
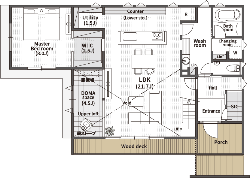
- 3LDK
+SC+土間スペース
+薪ストーブ+ウッドデッキ
+WIC+吹き抜け
+屋根裏収納+バルコニー - 延床面積 135.93m²(41.12 坪)
1階面積 88.00m²(26.62 坪)/
2階面積 47.93m²(14.50 坪)
品番:Piatta No.6建物価格
2,678万円〜(税抜)
- 3LDK
+SC+土間スペース
-
- 3LDK
+土間収納+吹き抜け+WIC
+サニタリースペース
+バルコニー - 延床面積 113.55m²(34.35 坪)
1階面積 71.47m²(21.62 坪)/
2階面積 40.82m²(12.35 坪)
品番:Piatta No.9建物価格
2,109万円〜(税抜)
- 3LDK
+土間収納+吹き抜け+WIC
その他にもプランをご用意しています
外観・内観コーディネート
家族で“ずっと愛せるデザイン・素材”を選ぼう
-

SALTY GRACE ソルティグレース・スタイル
白からグレーの無彩色を中心に、濃色をアクセントカラーとする上級者の色使い。装飾を最小限まで減らし、時に存在感のあるアイテムで遊び心をプラス。
-

CALIFOLNIA カリフォルニア・スタイル
アメリカ西海岸のビーチハウスをイメージ。光や風を取り込んだ居室は、リゾートで過ごすような味わい。サーフィンやアウトドアが趣味の方にオススメ。
-

INDUSTRIAL インダストリアル・スタイル
1950年代のニューヨーク、ブルックリンの倉庫や工場をイメージ。鉄骨の骨組み、高い天井、レンガ壁や古木材、アイアンなどを取り入れた無骨な空間。
-

MODERN ELEGANT モダンエレガント・スタイル
フランスの都会の女性を思わせる気品漂うスタイル。グレージュやペールトーンを基調に展開。物は少なくデザイン性の高い物を厳選して飾る方にオススメ。
-

JAPANESE MODERN ジャパニーズモダン・スタイル
日本の伝統的なデザインを現代的にアレンジしたスタイル。直線的なラインを基調とした空間。モダンな家具でコーディネートし、落ち着きのある雰囲気に。
-

BOTANICAL ボタニカル・スタイル
植物本来の魅力をインテリアに取り入れた、緑と明るい光に包まれた空間。

FRENCH SHABBY フレンチシャビー・スタイル
フランスの片田舎をイメージした部屋は、アンティーク家具や雑貨がピッタリ。
標準設備
憧れの機能&デザインが心を満たす
生活設備を標準で
室内ドア | Skism T
空間と調和するリビングキッチンで
心地よい豊かな暮らしを。
収納や居室の扉などに自分らしいスタイルを。新しいデザインやカラーが加わり、さらに表現の幅が広がりました。
クローゼット
ドア
パーテーション
外壁材 & 屋根材・軒天材
「ガルバリウム鋼板」×「木目柄」で
おしゃれでクールな印象に。
壁と屋根には、耐食・耐熱・耐久・耐震性に優れた「ガルバリウム鋼板」を。軒天には、デザイン性の高い「木目柄」を採用。
玄関ドア
快適性と防犯性を備えた上質な家の顔。
豊富なバリエーションから選べます。
窓 & サッシ
耐風圧性・水密性・防音性に優れた
デザイン性の高いアルミ樹脂複合窓を採用。
施工事例
WORKS
実際の家をのぞいてみよう

















